| |
Трансформаторы плоского типа
Специализированные трансформаторы и индуктивности
Справочная информация
|
Трансформаторы для печатных плат серии
EI 54
|
|
- Мощность – до 22 ВА
- Отсутствует защита от короткого замыкания у моделей с температурным
классом 70°C/B
- Стандартные модели имеют корпус типа "KK"
- Обязательное тестирование всех моделей на соответствие стандартам
ENEC 10- и VDE-. Факт тестирования подтверждается соответствующей
маркировкой на корпусе трансформатора.
- Стабильность параметров при температурных изменениях
- Высокий уровень безопасности и долгий срок службы
- Устойчивость первичной обмотки к броскам напряжения
- Негорючий материал корпуса и заливного компаунда
Рекомендация:
Первичная обмотка защищается внешним предохранителем согласно стандарта IEC 127,
вторичная – внешним резистором с положительным температурным коэффициентом (PTC)
|
|

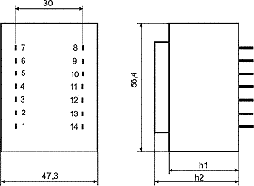
Габариты указаны с допуском ± 0.3 мм, если не указано иное.
Изготовитель оставляет за собой право на внесение изменений и
улучшений в конструкцию. |
| Вид со стороны выводов |
|
|
| Тип "KK" - корпус с 4 фиксирующими скобами |
| Типоразмер/Высота сердечника |
Выходная мощность для темп. класса ta 70°C/B, ВА |
Высота (h1), мм |
Высота (h2), мм |
Вес, г |
Нормоупаковка, шт. |
BV EI 540 ..../14.0 мм* |
12 |
около 27.0* |
около 33.7* |
350 |
24 |
BV EI 541 ..../18.8 мм |
16 |
32.0 ± 0.5 |
38.8 ± 0.5 |
400 |
24 |
BV EI 542 ..../23.5 мм |
20 |
36.5 ± 0.5 |
43.2 ± 0.5 |
500 |
24 |
BV EI 543 ..../25.5 мм |
22 |
39.5 ± 0.5 |
47.4 ± 0.5 |
550
| 24 |
*Только для типа "0"
| Номер для заказа |
Мощность, ВА |
Напряжение первичной обмотки, В |
Выводы первичной обмотки |
Напряжение вторичной обмотки, В |
Ток вторичной обмотки, мА |
Выводы вторичной обмотки |
Напряжение холостого хода, В |
| BV EI 540 1137 |
12 |
1x230 |
1-7 |
1x6 |
2000 |
9-13 |
1x8,1 |
| BV EI 540 1138 |
12 |
1x230 |
1-7 |
2x6 |
1000 |
8-9/13-14 |
2x8,1 |
| BV EI 540 1139 |
12 |
1x230 |
1-7 |
1x7,5 |
1600 |
9-13 |
1x9,9 |
| BV EI 540 1140 |
12 |
1x230 |
1-7 |
2x7,5 |
800 |
8-9/13-14 |
2x9,9 |
| BV EI 540 1141 |
12 |
1x230 |
1-7 |
1x9 |
1333 |
9-13 |
1x12,2 |
| BV EI 540 1142 |
12 |
1x230 |
1-7 |
2x9 |
667 |
8-9/13-14 |
2x12,2 |
| BV EI 540 1143 |
12 |
1x230 |
1-7 |
1x12 |
1000 |
9-13 |
1x15,8 |
| BV EI 540 1144 |
12 |
1x230 |
1-7 |
2x12 |
500 |
8-9/13-14 |
2x15,8 |
| BV EI 540 1145 |
12 |
1x230 |
1-7 |
1x15 |
800 |
9-13 |
1x19,4 |
| BV EI 540 1146 |
12 |
1x230 |
1-7 |
2x15 |
400 |
8-9/13-14 |
2x19,4 |
| BV EI 540 1147 |
12 |
1x230 |
1-7 |
1x18 |
667 |
9-13 |
1x23,5 |
| BV EI 540 1148 |
12 |
1x230 |
1-7 |
2x18 |
334 |
8-9/13-14 |
2x23,5 |
| BV EI 540 1149 |
12 |
1x230 |
1-7 |
1x24 |
500 |
9-13 |
1x30,6 |
| Номер для заказа |
Мощность, ВА |
Напряжение первичной обмотки, В |
Выводы первичной обмотки |
Напряжение вторичной обмотки, В |
Ток вторичной обмотки, мА |
Выводы вторичной обмотки |
Напряжение холостого хода, В |
| BV EI 541 1121 |
16 |
1x230 |
1-7 |
1x6 |
2667 |
9-13 |
1x7,9 |
| BV EI 541 1128 |
16 |
1x230 |
1-7 |
2x6 |
1334 |
8-9/13-14 |
2x7,9 |
| BV EI 541 1122 |
16 |
1x230 |
1-7 |
1x7,5 |
2134 |
9-13 |
1x9,7 |
| BV EI 541 1129 |
16 |
1x230 |
1-7 |
2x7,5 |
1067 |
8-9/13-14 |
2x9,7 |
| BV EI 541 1123 |
16 |
1x230 |
1-7 |
1x9 |
1778 |
9-13 |
1x11,7 |
| BV EI 541 1130 |
16 |
1x230 |
1-7 |
2x9 |
889 |
8-9/13-14 |
2x11,7 |
| BV EI 541 1124 |
16 |
1x230 |
1-7 |
1x12 |
1333 |
9-13 |
1x15,2 |
| BV EI 541 1131 |
16 |
1x230 |
1-7 |
2x12 |
667 |
8-9/13-14 |
2x15,2 |
| BV EI 541 1125 |
16 |
1x230 |
1-7 |
1x15 |
1067 |
9-13 |
1x19,1 |
| BV EI 541 1132 |
16 |
1x230 |
1-7 |
2x15 |
534 |
8-9/13-14 |
2x19,1 |
| BV EI 541 1126 |
16 |
1x230 |
1-7 |
1x18 |
889 |
9-13 |
1x22,3 |
| BV EI 541 1150 |
16 |
1x230 |
1-7 |
2x18 |
445 |
8-9/13-14 |
2x22,3 |
| BV EI 541 1110 |
16 |
1x230 |
1-7 |
1x24 |
667 |
9-13 |
1x29,1 |
| Номер для заказа |
Мощность, ВА |
Напряжение первичной обмотки, В |
Выводы первичной обмотки |
Напряжение вторичной обмотки, В |
Ток вторичной обмотки, мА |
Выводы вторичной обмотки |
Напряжение холостого хода, В |
| BV EI 542 1151 |
20 |
1x230 |
1-7 |
1x6 |
3334 |
9-13 |
1x7,7 |
| BV EI 542 1152 |
20 |
1x230 |
1-7 |
2x6 |
1667 |
8-9/13-14 |
2x7,7 |
| BV EI 542 1153 |
20 |
1x230 |
1-7 |
1x7,5 |
2667 |
9-13 |
1x9,5 |
| BV EI 542 1154 |
20 |
1x230 |
1-7 |
2x7,5 |
1334 |
8-9/13-14 |
2x9,5 |
| BV EI 542 1155 |
20 |
1x230 |
1-7 |
1x9 |
2223 |
9-13 |
1x11,4 |
| BV EI 542 1156 |
20 |
1x230 |
1-7 |
2x9 |
1112 |
8-9/13-14 |
2x11,4 |
| BV EI 542 1157 |
20 |
1x230 |
1-7 |
1x12 |
1667 |
9-13 |
1x15 |
| BV EI 542 1158 |
20 |
1x230 |
1-7 |
2x12 |
834 |
8-9/13-14 |
2x15 |
| BV EI 542 1159 |
20 |
1x230 |
1-7 |
1x15 |
1334 |
9-13 |
1x18,6 |
| BV EI 542 1160 |
20 |
1x230 |
1-7 |
2x15 |
667 |
8-9/13-14 |
2x18,6 |
| BV EI 542 1161 |
20 |
1x230 |
1-7 |
1x18 |
1112 |
9-13 |
1x21,8 |
| BV EI 542 1162 |
20 |
1x230 |
1-7 |
2x18 |
556 |
8-9/13-14 |
2x21,8 |
| BV EI 542 1163 |
20 |
1x230 |
1-7 |
1x24 |
834 |
9-13 |
1x29,5 |
| Номер для заказа |
Мощность, ВА |
Напряжение первичной обмотки, В |
Выводы первичной обмотки |
Напряжение вторичной обмотки, В |
Ток вторичной обмотки, мА |
Выводы вторичной обмотки |
Напряжение холостого хода, В |
| BV EI 543 1166 |
22 |
1x230 |
1-7 |
1x6 |
3667 |
9-13 |
1x7,4 |
| BV EI 543 1167 |
22 |
1x230 |
1-7 |
2x6 |
1834 |
8-9/13-14 |
2x7,4 |
| BV EI 543 1168 |
22 |
1x230 |
1-7 |
1x7,5 |
2934 |
9-13 |
1x8,9 |
| BV EI 543 1169 |
22 |
1x230 |
1-7 |
2x7,5 |
1467 |
8-9/13-14 |
2x8,9 |
| BV EI 543 1170 |
22 |
1x230 |
1-7 |
1x9 |
2445 |
9-13 |
1x10,7 |
| BV EI 543 1171 |
22 |
1x230 |
1-7 |
2x9 |
1223 |
8-9/13-14 |
2x10,7 |
| BV EI 543 1172 |
22 |
1x230 |
1-7 |
1x12 |
1834 |
9-13 |
1x14,5 |
| BV EI 543 1173 |
22 |
1x230 |
1-7 |
2x12 |
917 |
8-9/13-14 |
2x14,5 |
| BV EI 543 1174 |
22 |
1x230 |
1-7 |
1x15 |
1467 |
9-13 |
1x17,9 |
| BV EI 543 1175 |
22 |
1x230 |
1-7 |
2x15 |
734 |
8-9/13-14 |
2x17,9 |
| BV EI 543 1176 |
22 |
1x230 |
1-7 |
1x18 |
1223 |
9-13 |
1x21 |
| BV EI 543 1177 |
22 |
1x230 |
1-7 |
2x18 |
612 |
8-9/13-14 |
2x21 |
| BV EI 543 1178 |
22 |
1x230 |
1-7 |
1x24 |
917 |
9-13 |
1x28 |
Заказные версии трансформаторов серии EI54
|
Помимо указанных стандартных трансформаторов серии EI 54, компания HAHN производит и другие варианты этих трансформаторов. Например, со встроенным термопредохранителем или термовыключателем; с различными вариантами корпусов; креплений и выводов для электрических соединений.
Кроме того, возможно изготовление негерметизированных трансформаторов.
|

Вид со стороны выводов |

Вид со стороны выводов |
| Тип "0" - корпус без фиксирующих скоб |
Тип "K" - с 2 фиксирующими скобами |
 Вид со стороны выводов |

Вид со стороны выводов |
| Тип "W" - для вертикального монтажа |
Тип "0" - с отверстиями для фиксации самонарезающими шурупами |
|
Габариты указаны с допуском ± 0,3 мм
- Вывод для пайки: 1.1 x 0.5 мм или Ж 0,8 мм |
|
|